詳細に何度も打合わせしたかいあって、使い勝手良く、ストレスなく快適に使用しているとの事でした。
写真や文面には出てきてはいませんが、照明と換気扇のスイッチが、扉の変更の関係上、外(廊下側)から内(トイレ内部)に変更になり、外からON/OFFの状態が分かりづらくなってしまいました。
そこで、照明はセンサー付で、換気扇のスイッチも遅延タイマー付とした為、切り忘れもなく、不自由なく生活いただいているとの事でした。
砺波市/お手入れのしやすさとトイレ内収納へのこだわり。どちらも叶えたトイレ改装工事【10226】
- お客様名
- W様邸
- 施工エリア
- 富山県砺波市
- リフォーム期間
- 20日間
- 費用
- 149.6万円(工事依頼当時の価格です)
以前からダイニングキッチン改装工事などをご依頼いただいたW様。
お風呂・脱衣室の改装は終えているので、最後に水廻りとして残っているトイレの改装を、今回ご依頼いただきました。大きな変更内容として、下記の2点のご要望を受けました。
B.現状、腰壁がタイルで上壁が塗り壁だったトイレ。お手入れがしやすいように、腰壁を目地の無い(少ない)パネルに変更し、上壁は壁がポロポロ落ちてこない壁紙に変更したい。
上記の変更に伴い、下記の細かな点もご要望を受けました。
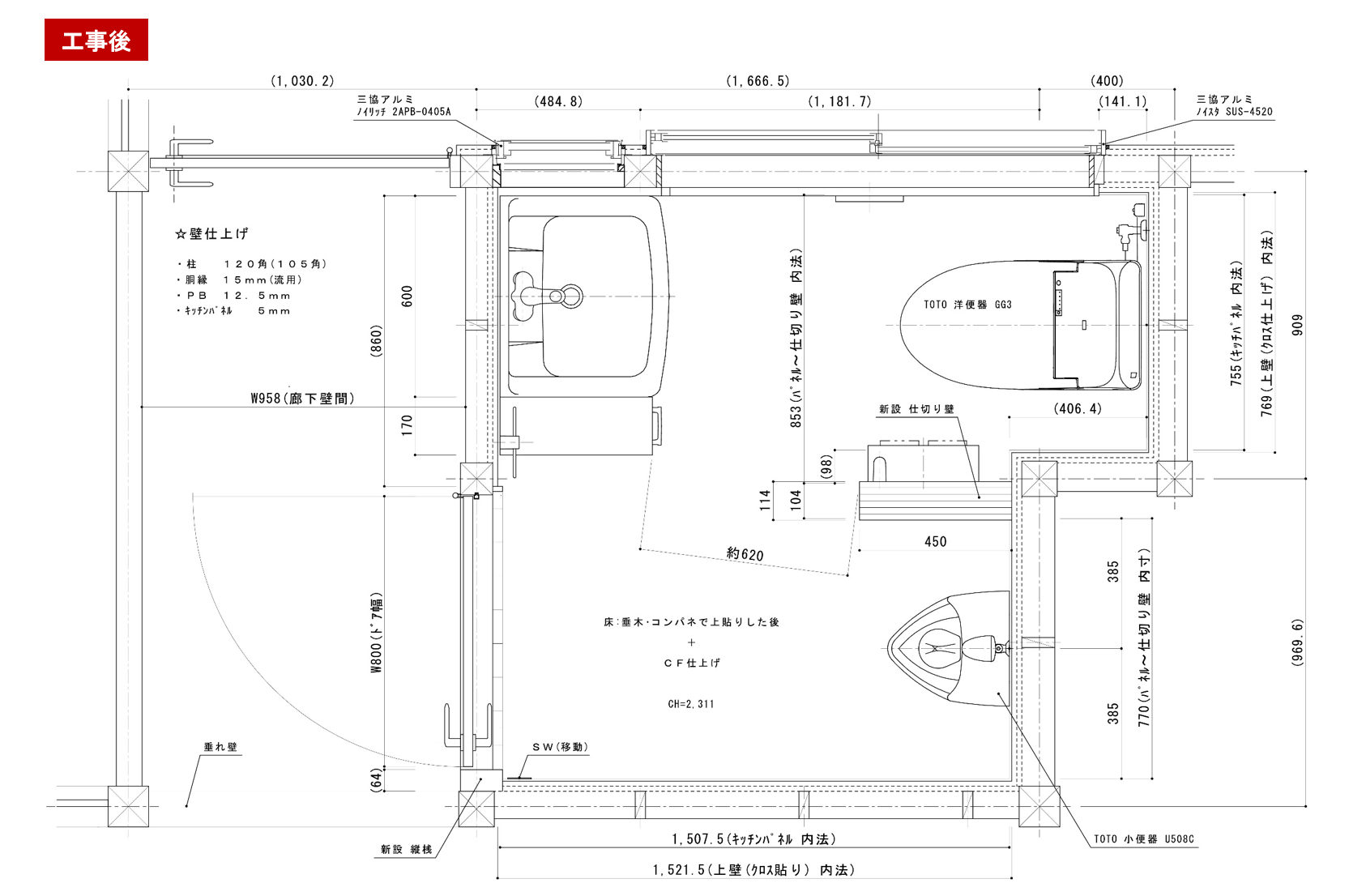
②同様に、車椅子でトイレ内に入って行けるよう、入口の開口をできる限り大きく(広く)してほしい。
③小便器が無くなって構わないので、お掃除などがしやすいように洋便器周りをゆったりしてほしい。
④手洗い器が小さく、水の出も悪いため、手がしっかり洗えない。大きな洗面器で水跳ねを気にする事なく、手を洗えるようにしたい。
⑤手洗い器の収納が小さく、掃除用具などがうまく収納できない。長いモップなどは別として、できる限り見せないように、掃除用具を収納したい。
⑥現在、暖房付収納棚にトイレットペーパーを収納している。この収納はすごく重宝しているため、同じ用途の収納をどこかに設けてほしい。暖房機能は故障していて現在は使用していないので、無くなって構わない。
⑦手洗い用のタオルを無理やり収納しているため、使いやすい場所に、タオルの収納スペースも設けてほしい。
大きな変更点Aの床については、床下に潜ってトイレ廻りを確認した所、基礎で4方が覆われていて、大引きや根太(床垂木)の状態がどのようになっているかが確認できませんでした。
そのため、既存のタイルの床を、あえてそのまま残し、そのタイルにコンクリートビスで垂木を固定し、構造用合板とベニヤを上貼りする形で、クッションフロア仕上げの床に変更しました。
大きな変更点Bの壁については、既存のタイルと塗り壁をすべて撤去し、プラスターボードにやり替え、その後、パネルと壁紙で施工しました。
天井は比較的綺麗だったため、コストの関係上、廻り縁だけやり替え、そのままとしました。
①に関しては、床を嵩上げし、上貼りする事になったため、垂木と構造用合板とベニヤの組合せで高さ調整し、廊下とほぼフラットの形になるようにしました。
②に関しては、扉横にあった袖壁を撤去し、その分、開口を広げました。(W600→W800) その際、吊り元も逆に付け替え、廊下からの出入りをしやすくしました。
③に関しては、トイレの形状が真四角ではなかったため、仮に小便器を撤去しても、洋便器周りが思ったより広くならないことを、図面を用いてご説明させていただきました。
また、男性が小をする際の飛び散りを考えると、小便器を残した方が、洋便器のお掃除も楽になることをご説明させていただき、小便器は残すことになりました。
その代わりに手摺りや紙巻器といった突起物を、間仕切り壁横の凹ましたスペースに取付け、少しでも洋便器周りがスッキリするようにしました。


リモコンのみ、右利きの方が操作しやすい右側に取付ました。
④に関しては、トイレのスペースに余裕があった事もあり、狭小手洗器ではなく、洗面ボールが大きい 一般的な洗面台を設置し、対応させていただきました。
⑤に関しては、背の高い物も収納できるよう、開き扉の洗面台を選び、洗面台の下部スペースに掃除用具などを収納していただく事としました。
⑥に関しては、トイレが一体型でタンクを背負ったタイプでなかったため、頭上部が気になる事もあり、通常よく見かける、トイレ背面のトイレットペーパー収納は採用しませんでした。
その代わり、洗面台のミラーキャビネット部分に小さめの化粧鏡を設置し、取り出しやすさを考え、鏡の隣に収納を設けました。洗面台と化粧鏡+収納棚の幅を合わせて、見た目にも気を付けました。
⑦当初、幅75㎝の洗面台で提案していましたが、手を洗うだけなので、そこまで大きくなくても良いという事になりました。そこで洗面台の幅を60㎝に変更し、隣に幅15㎝のサイドキャビネットを設け、そこにタオル類を収納していただく事になりました。
トイレはTOTO GG3をお選びいただきました。
便ふた自動開閉、オート洗浄、ノズルや便器の除菌機能がついたコンパクトな一体型トイレです。
手洗いに使用した洗面台はLIXIL オフトです。
どちらの商品も砺波店、射水店に展示しております。お気軽にご来店くださいませ!
ご依頼いただきありがとうございました
お客様の声
ツカサクからのコメント
スペースや幅・高さなどを、感覚ではなく数字としてお伝えしたかった為、平面図だけでなく、4面の展開図もCADで作成して、お打合せさせて頂きました。
ただ、完成するまで、お客様が完成イメージを思い描けなかった事もあり、リフォーム後のカラーパースなども作成してあげれば良かったかなと、少し反省も残るリフォーム工事でした。次回、時間が取れれば、その点も考慮していきたいと思っています。
自分もどちらかと言うと、集中収納より、分散収納派の為、お客様のご要望がものすごく共感できる内容ばかりでした。
今後も、お客様の思いに寄り添って、色々と共感してもらえるご提案できたならと思っています。
【10226】
詳細
施工前
施工後
施工前
施工後
施工前
施工後
施工前
施工後
施工前
施工後
施工前
施工後
施工前
施工後
施工前
施工後
施工前
施工後
施工前
施工後
施工前
施工後
施工前
施工後




